Private
3 years ago
95 Views

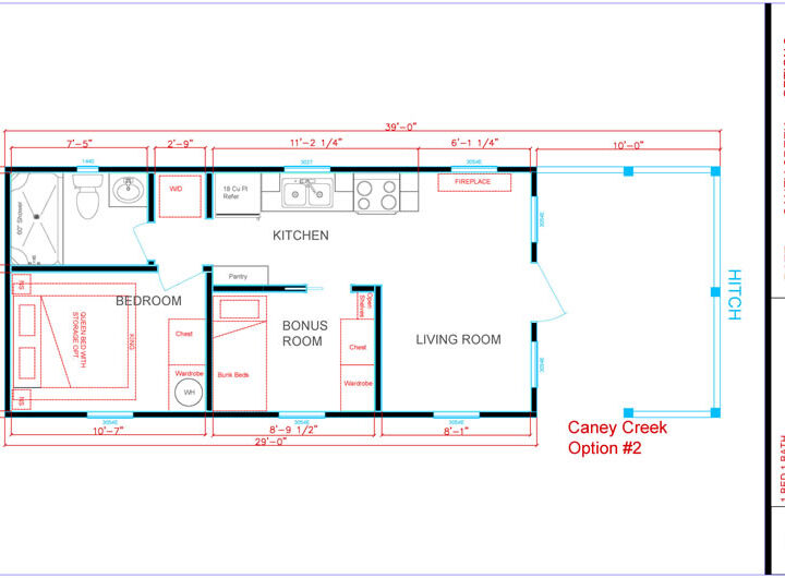
Caney Creek

Stone Canyon Homes

399 Square Feet
2 Bedrooms
1 Bathrooms
Size: 13’8″ x 39′

The Caney Creek is our most flexible tiny house floor plan. The options include an extended living area or an additional bedroom with storage. The extra bedroom comes in two layouts: one with a queen mattress, and one with a bunk bed containing a twin mattress on top and full mattress on the bottom.

This tiny home features high-end interior finishes and vaulted ceilings with recessed lighting creating a spacious living area. Hangout on the ten-foot covered porch and enjoy a breezy evening from the comfort of your own tiny home.

Specifications

Insulation

  • R-11 Floor, R-13 Wall, R-19 Ceiling Insulation

Flooring

  • Linoleum
    • Color of Choice: Driftwood, Lime Oak

Walls

  • 1×6 Nordic Spruce V-Joint Tongue & Groove Interior Walls (Sealed Natural Wood)
  • Interior Wall Trim – Sealed Natural Wood

Exterior

  • Prefinished LP Smart Lap Siding
    • Color of Choice: White, Alder, Barn Wood, Cedar, Silver Ash
  • 2×6 16″ O.C. Rafters – Double 2×6 Ridge Beam
  • Prefinished LP SmartSide Textured Trim
    • Color of Choice: White, Alder, Cedar, Silver Ash

Roof

  • Galvanized Sheet Metal Roof
    • Color of Choice: Ash Gray, Black, Brite Red Burgundy, Burnished Slate, Charcoal, Clay, Copper Penny, Country Red Forest, Green Galvalume, Hawaiian Blue Ivory, Ivy Green, Light Stone, Polar White, Regal Blue, Sahara Tan, Tudor Blue

Windows

  • 30″x54″ Vinyl Double Pane No Grid Window (White): 6
  • 30″x27″ Vinyl Double Pane No Grid Window (White): 1
  • 54″x24″ Vinyl Double Pane No Grid (White): 1
  • 14″x40″ Vinyl Double Pane Window (White): 1
  • OSI Window Sealing with 15 Year Warranty

Doors

  • Interior – 24″ Swing Door 5 Panel Sealed Natural Wood: 1
  • Interior – 28″ Swing Door 5 Panel Sealed Natural Wood: 2
  • Exterior – 36″ Full Glass Door w/Built-In Blinds (White)

Countertops

  • Rolled Edge Formica Countertops
    • Color of ChoiceFormica – Italian, White Di Pesco, Granite – Labrador)

Sinks

  • Kitchen – Stainless Steel Double Bowl Sink with Spring Faucet
  • Bathroom – White Porcelain

Shower

  • 54″ Shower Stall

Water Heater

  • 20 Gal Lowboy Water Heater

Air Conditioning

  • Mitsubishi 9000 BTU Ductless Mini-Split Indoor Air Handler
  • Mitsubishi 18,000 BTU Ductless Outdoor Heat Pump

Cabinetry

  • Kitchen – Sealed Natural Wood
  • Bathroom Sink Vanity – Sealed Natural Wood

Features

Available Upgrades

Siding

  • James Hardie Board Siding
    • Color of Choice: Cobblestone, Timber Bark, Khaki, Brown, Mountain Sage, Evening Blue, Boothbay Blue, Gray Slate
  • Everlast Advanced Composite Siding
    • Color of Choice: Saddle Wood Spanish Moss Storm Grey Seaside Grey

Insulation

  • R-22 Floor Insulation
  • “Alaska” Cold Weather Package (R-22 Underfloor, R-19 Wall, R-22 Ceiling with 2″x6″ Sidewall Studs)

Flooring

  • Loft Linoleum
    • Color of Choice: Driftwood, Lime Oak

Porch

  • Composite Porch Decking
    • Color of Choice: Rustic Cedar, Brindle (Brown), Cathedral Stone (Grey)
  • Fully Enclosed Porch Screening (Black Vinyl)
  • Screened Porch Door (Black Vinyl Screen)
  • Additional Porch Deck on End of House
  • Second Level “Sky” Deck

Interior Wall

  • 1×8 Nickel Gap Interior Walls (Sealed Natural Wood)

Appliances

  • 4.8 Cu Ft Smooth Top Electric Range
  • 18.3 Cu Ft Refrigerator w/ice maker
  • 1.6 Cu Ft Over Range Microwave

Bedding

  • Built in Bed Frame w/Storage (Queen)
  • Built in Bed Frame w/Storage (King)
  • Foam Bunk Mattress
  • Twin Size Mattress
  • Full Size Mattress
  • Queen Size Mattress
  • King Size Mattress
  • Bunk Beds
  • Queen Bed

Lighting

  • Additional Pendant Light
  • LED Under Cabinet Lighting
  • Extended Bar

Cabinetry

  • Nightstands
  • Wardrobe
  • Cabinet Stairs

Electricity/Wiring

  • USBc Outlet Wall Plug
  • Interior TV/Ethernet Wiring
  • Porch TV/Ethernet Wiring
  • Additional Exterior Power Outlet on Porch
  • 200 AMP Power Panel
  • *required for Eemax Elec. Water Heater / 24,000 BTU Heat Pump
  • Exterior 200 AMP Power Quick Disconnect
  • Additional 30 AMP Exterior Elec Plug w/cover

Fans

  • Additional Ceiling Fan
  • Wet Location Ceiling Fan w/12″ Downrod

Paint

  • Full Interior Paint/Stain (Walls, Trim, Cabinetry, Doors, Ceiling)

*Interior Walls/Trim/Cabinetry/Doors/Ceiling

Other

  • Engineering Fee for Modification of Model Floor Plan
  • Electric Fireplace w/Hearth

Contact us at 210-591-3176

Click Here! to fill form and make enquiries

Write a Review

Post as Guest
Your opinion matters
Add Photos
Minimum characters: 10
© 2024 Tinyhomeforsaletx. All rights reserved.
Call Us Now