Private
3 years ago
51 Views

Centipede: A Small Getaway

Utopian Villas

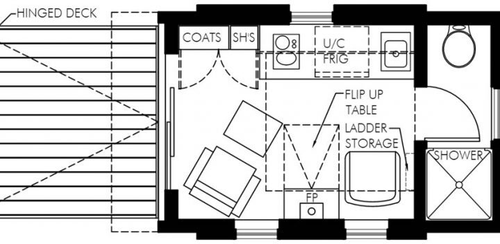
The Centipede (sen-tuh-peed), known for its common name of “100 legs” defines this travel trailer or tiny home by the square foot alone. Don’t let its size fool you because this 100 square foot tiny home offers a hinged deck with swinging glass entry doors, giving you the chance to sit and stare all day or night long!

100 square feet

Contact us at 210-591-3176

Glancing at the outside, the Centipede’s single sloped roof line and multiple exterior finishes may give the impression that there is no space inside. However, the loft bedroom, loft storage and the rolling ladder will prove you wrong as we enter this tiny home. Another deception of the Centipede’s outside size is the toilet and shower built underneath the loft storage space. The large skylight illuminates the main area which includes a mini fridge, a custom closet area, a couch or love seat, a retractable kitchen table and built in shelves! With the centipede being considered one of the oldest known animals on the planet, it is no wonder why we named this tiny home after it. Wherever your home take you , be it prairies, savannas, tropical rain forests, or if you prefer urban areas close to other humans, the Centipede definitely lives up to its name.

Contact us at 210-591-3176

Specifications

  • patented #6018921 insulated floor system
  • 2×4 exterior wall construction with ZIP system sheeting
  • closed cell spray foam in walls, ceilings and floor
  • Pella windows and doors
  • Kohler plumbing products
  • Sea-Gull LED lighting
  • custom cabinets & built-ins
  • solid surface countertops

Contact us at 210-591-3176

Features

  • 100 sq. ft
  • contemporary design
  • vaulted ceilings w/large skylight
  • multiple exterior finishes
  • loft area
  • hinged deck
  • rolling ladder
  • flip up table
  • swinging glass entry doors
  • built in shelves
  • wood interior
  • off the grid option
  • much more

Contact Us

Write a Review

Post as Guest
Your opinion matters
Add Photos
Minimum characters: 10
© 2024 Tinyhomeforsaletx. All rights reserved.
Call Us Now