Private
3 years ago
255 Views

Schooner : A Unique View in the Tiny Home World

Utopian Villas

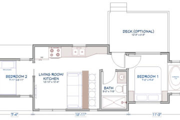
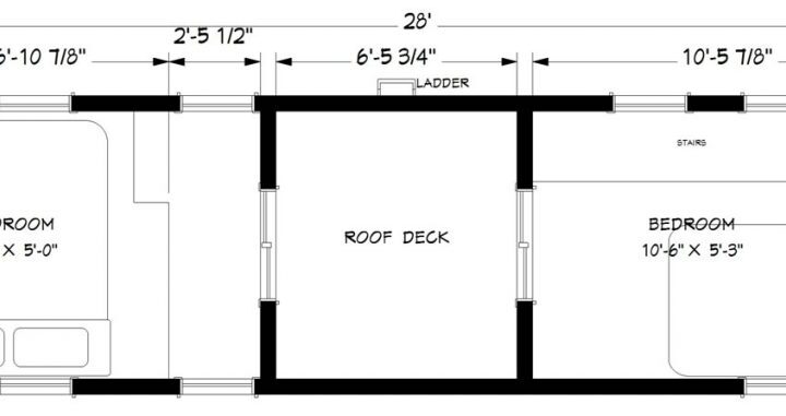
This 200 square foot tiny home is very spacious with slanted interior walls and sunken roof deck. However, don’t let the outside fool you, the interior is just as intriguing with its full size bathroom, stairs, and two upper lofts to enjoy the stars at night.

200 square feet

Contact us at 210-591-3176

The enclosed roof deck is elevated to give you that observation feel, taking in the unobstructed view of the skies above. This deck is easily accessible by the iron ladder attached to the back of the home and easily opened to enjoy the starry skies. This tiny home offers all of the needed amenities of living comfortably, including a combination washer and dryer, full size refrigerator, and a 60″ tub for relaxation after a long day. With all the natural light coming in to this tiny home, it’s no wonder that people are falling in love with this design. Its crazy shape and design is giving the Schooner its own unique view in the tiny home world.

Contact us at 210-591-3176

Specifications

  • patented #6018921 insulated floor system
  • 2×4 exterior wall construction with ZIP system sheeting
  • closed cell spray foam in walls, ceilings and floor
  • Pella windows and doors
  • Kohler plumbing products
  • Sea-Gull LED lighting
  • custom cabinets & built-ins
  • solid surface countertops
  • much more

Contact us at 210-591-3176

Features

  • 200 sq. ft
  • contemporary design
  • vaulted ceilings w/large skylight
  • multiple exterior finishes
  • loft area
  • hinged deck
  • rolling ladder
  • flip up table
  • swinging glass entry doors
  • built in shelves
  • wood interior
  • off the grid option
  • much more

Contact Us

Write a Review

Post as Guest
Your opinion matters
Add Photos
Minimum characters: 10
© 2024 Tinyhomeforsaletx. All rights reserved.
Call Us Now